意大利艺术马赛克品牌BISAZZA展厅智能化建设
项目基本情况:
项目类别:综合空间展厅智能项目
位置及周边概括性描述:上海徐汇漕河泾商圈创意园幸福里睿园C座(桂平路353号)
空间信息:一栋三层独立建筑,带花园

用户使用需求:意大利艺术马赛克品牌BISAZZA新展厅,需求智能化建设赋予“温馨的家”的展厅形象,结合艺术马赛克和高端卫浴产品展陈,营造高雅舒适的展厅环境氛围和轻松愉快的办公环境氛围,构架出一个出类拔萃的时尚艺术馆。同时保障加强展厅的安全级别,为展厅有序化管理提供便利。
圣谛设计团队:
方案设计-范宾先生
工程技术-陈海东先生、罗建涛先生
***
圣谛精彩解析
圣谛智能化建设,深度介入展厅空间,注重秩序与功能的结合,细致展现舒适温馨的人文关怀,更呈现BISAZZA展厅作为国际品牌国内旗舰店独特的品牌风格和对品质空间的表达。

倘徉音乐之海,整屋多分区背景音乐系统
意大利著名艺术马赛克品牌BISAZZA,创立至今已有六十余年,此次上海的新展厅是一栋带花园的三层独栋楼房,第一二层为敞开式平面布局展厅空间,第三层为员工办公区和独立办公室。


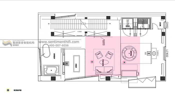
展厅第一层和花园背景音乐点位图
圣谛采用美国Casatunes音乐系统为其整栋楼和花园打造了户内外多分区全隐藏背景音乐,美国建筑类音箱品牌SpeakerCraft斯卡夫无边框吸顶设计与天花板融为一体,带来丝丝入耳的柔美优质音乐。
依托Casatunes音乐系统拥有的大型中央储存空间和可进行分区独立管理的功能,在BISAZZA展厅的不同区域实现播放不同的音乐内容,只需通过手机APP就可操作完成。


展厅第二层背景音乐点位图
SpeakerCraft斯卡夫高保真优质的音效和便捷操作的音乐系统,为展厅带来动听的背景音乐,在开放的空间内流动,使人与空间,空间与空间相互渗透、融合,使参观者身心放松心情愉悦,同时营造出BISAZZA展厅高雅舒适的参观洽谈氛围。


第三层员工办公区背景音乐点位图
三楼的员工办公区,另增设一对瑞典高保真Hi-Fi音箱,清脆悦耳的悠扬旋律缓解工作中的紧张忙碌疲惫之感,带来点滴轻松快意。

在BISAZZA展厅的音乐花园里,美国SpeakerCraft OG3户外音箱“隐身”在绿植中,地插式设计,IP65防护等级可抵抗灰尘、雨水、防腐蚀,经久耐用,与花园完美融为一体。
在圣谛丰富经验的工程技术人员精心的调试下,保证了每一个扬声器都达到统一的声压级,BISAZZA展厅大型背景音乐的完整建设,无论室内外,优美的音乐如影随形,彰显不凡。
一键操作焕然一新,展厅舒适度管理系统
BISAZZA展厅有大面积的落地窗,给参观者带来开阔、舒适的视野,圣谛为其建设舒适度管理系统,在智能面板或手机上一键操作,整一层面的落地窗窗帘同时有序的伴随着舒缓的音乐缓慢打开,室外良好的自然光将马赛克艺术墙面照耀的熠熠生辉,夺人眼球,展厅面貌焕然一新。




高级别安全保障系统&企业级无线网络全覆盖
圣谛为BISAZZA展厅建设安防监控、报警系统,实时保障展厅昂贵的陈展产品完好无损。一楼的展厅门口和三楼员工办公区安装可视对讲,为服务参观者的到来提供便利。


展厅第一层安防监控点位图
企业级高速无线路AP,提供稳定有效的千兆网络,密度高,信号强度大,覆盖范围广、辐射小,足够几十至上百人同时共用网络,并能够保证网络的传输速度。

展厅第一层无线AP点位图
每层楼一个智能面板控制即可
圣谛提供综合布线,选用KNX总线控制协议体系构建展厅智能核心架设,在此基础上每层楼仅用一个德国智能面板就能对灯光、空调进行控制管理,而不是墙面上一排功能单一的开关面板。

空间系统设计规划和设备简览
KNX全宅智能控制(德国智能控制面板、土耳其Interra )
户内外多分区全隐藏背景音乐(美国斯卡夫SpeakerCraft、瑞典高保真音响)
展厅安防系统(报警系统、监控及录制系统、可视门禁系统)
展厅企业级高速无线网络覆盖
舒适度管理系统(遮阳系统)
想要了解BISAZZA更多精彩故事
欢迎联系BISAZZA品牌负责人
COCO女士

 
                                                
                         
  
		                    



